


76 607 ₽/м²
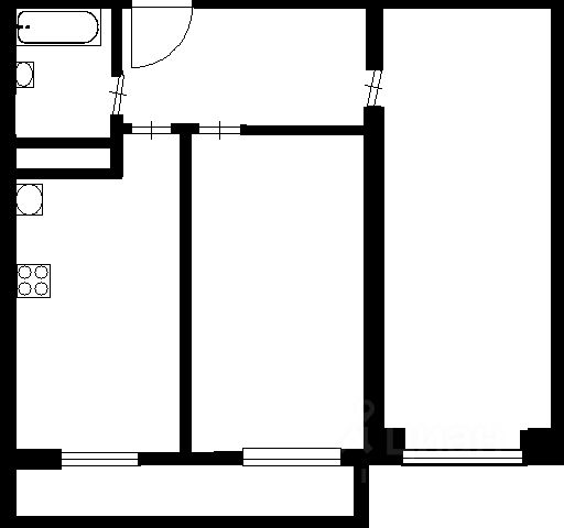
Продаётся уютная трехкомнатная квартира в старом центре города по адресу: г. Волжский, 41 кв-л, улица Советская 45. * Тип дома: панельный. * Этаж: 4 из 5. * Количество комнат: 3. * Общая площадь: 56 м². * Жилая площадь: 23,2 м². * Площадь кухни-столовой: 20,5 м². * Цена: 4 290 000 ₽. Удобная просторная кухня-столовая 20,5 м² (перепланировка узаконена), комнаты на разные стороны 10,7 м² и 12,5 м². Выполнен косметический ремонт, заменена проводка, стены выровнены и оклеены обоями, на полу коммерческий линолеум, натяжные потолки, установлены пластиковые окна, балкон застеклен и утеплен, заменены межкомнатные и входная двери, санузел раздельный, отделан кафелем, сантехника в отличном состоянии, счетчики на воду и газ. Остаются в подарок: кухонный гарнитур, варочная панель, вытяжка, встроенный шкаф (между комнатами), сплит-система. Тихий район. Рядом с домом: школа, детский сад, автобусные и трамвайные остановки, различные магазины, парк, детская поликлиника, рынок. Чистая продажа. Рассмотрим продажу по ипотеке, материнскому капиталу, жилищным сертификатам. ______________________________________ Агентство недвижимости "RESIDENT", г. Волжскии, ул. Александрова 18а, ТРК Волгамолл, 3 этаж, офис 5. Проведем комплексную проверку недвижимости и собственников. Одобрим ипотеку. Подготовим документы и сопроводим на сделке. Выгодно продадим вашу недвижимость. Звоните. Купить 3-комнатную квартиру с балконом в Волжском.



























































































