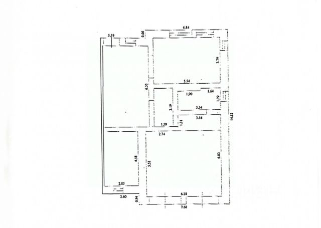
Предлагается к продаже великолепный дом, расположенный в одном из престижных районов Среднеахтубинского района, Ахтубинское сельское поселение, пос."Колхозная Ахтуба". Поселок расположен вблизи 2-х городов Волгограда и Волжского. Дом и участок в собственности. Площадь дома - общая: 303 кв.м. Цокольный этаж - отапливаемый жилой с окнами, общей пл.: 154,1 кв.м. состоит из 3-х комнат, спортзала, котельной, гардеробной. 1-й этаж, общей пл. - 148.9 кв.м., состоит из 3-х спален, кухни-гостинной с выходом на лоджию, 2-а сан.узла, гардеробная, прихожая, коридор. Дом обустроен всеми необходимыми коммуникациями для жизни: газовое отопление(очень экономичное, дом теплый), электричество, канализация - 2-а септика, 2-е скважины(для полива и хозяйственных нужд). Ремонт в доме выполнен из качественных материалов и обслуживается качественной бытовой техникой. Высота потолков в доме - 3 метра, что создает атмосферу свободы и комфорта. Кровля дома выполнена из мягкой черепицы. На участке выполнен ландшафтный дизайн, на нем расположен гараж на 2- машины, баня, летняя беседка с мангальной зоной. Высажены плодовые деревья, кустарники, в том числе декоративные, выделена зона для огорода. Дом огорожен с 4-х сторон высоким забором, соседи с одной стороны, вид с лоджии и из окон на участок и деревья. Месторасположение дома отличное, вся инфраструктура рядом: школа, дет.садик, магазины, мед.пункт, остановка общественного транспорта, река Ахтуба с пляжем, лес в 10 минутах хотьбы. Подьездные пути без проблем - бетонная дорога, улицы чистые, широкие. Документы готовы к продаже, звоните, реальному покупателю возможен торг.














































































