Мы используем куки-файлы. Соглашение об использовании
С мебелью
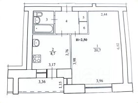
Общая площадь38,1 м²
Жилая площадь20,7 м²
Площадь кухни8,7 м²
Этаж6 из 9
Год постройки1987
1-к квартира по адресу: им. генерала Штеменко ул, д. 68 в Краснооктябрьском районе; Планировка: общая 38.10 / жилая 20.70 / кухня 8.70 Квартира в хорошем состоянии. Пластиковые окна. На полу ламинат, линолеум. Установлены современные межкомнатные двери. Есть застекленная пластиком лоджия При продаже остается: встроенный шкаф Квартира не угловая, окна выходят на улицу. Отличная локация: в шаговой доступности сетевые магазины, рынок, поликлиника, школа, детский сад, общественный транспорт. Условия продажи: 1 собственник, чистая продажа, подходит под ипотеку. Остановка: Генерала Штеменко, Юность, рядом проходят улицы Ул. Поддубного, Маршала Еременко. Объект 942157
Позвоните автору
Вам ответят на все вопросы

О квартире

Тип жилья

Вторичка

Общая площадь

38,1 м²

Жилая площадь

20,7 м²

Площадь кухни

8,7 м²

Высота потолков

2,5 м

Санузел

1 совмещенный

Балкон/лоджия

1 лоджия

Вид из окон

На улицу и двор

Ремонт

Косметический

Продаётся с мебелью

Да

О доме

Год постройки

1987

Строительная серия

Индивидуальный проект

Количество лифтов

1 пассажирский

Тип дома

Кирпичный

Тип перекрытий

Железобетонные

Подъезды

2

О подъезде

Есть мусоропровод

Отопление

Центральное

Аварийность

Нет

Газоснабжение

Центральное

Спросите умного помощника
Получите экспертное мнение о жилье

Расположение

Ипотечный калькулятор
  • Базовая
  • Семейная
  • ИТ-ипотека
  • 20%
  • 30%
  • 40%
  • 50%
лет
  • 10 лет
  • 20 лет
  • 30 лет
Загружаем предложения от застройщика и банков
Помощь риелтора
Проверенный риелтор поможет купить или продать квартиру
3 870 000 ₽
Цена за метр
101 575 ₽/м²
Условия сделки
свободная продажа
Ипотека
возможна
Агентство недвижимости
Документы проверены
На Циан
11 лет
Объектов в работе
более 1000