Мы используем куки-файлы. Соглашение об использовании

Продается 2-комн. квартира, 48,8 м²

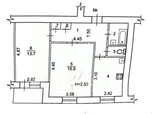
Общая площадь48,8 м²
Жилая площадь29,6 м²
Площадь кухни7,5 м²
Этаж5 из 9
Продается уютная, двухкомнатная квартира с лоджией, в кирпичном доме, на среднем этаже, в Тракторозаводском районе, в микрорайоне Спартановка на улице Грамши, дом 51. Рядом расположены улицы Николая Отрады, Кастерина, Богомольца, Гороховцев и Волжской Флотилии. Общая площадь 48,8 кв.м. эффективно распределена: просторная жилая зона 29,6 кв.м. и удобная кухня 7,5 кв.м. Квартира находится на 5 этаже 9-этажного дома серии "Улучшенная планировка", что гарантирует надежные кирпичные стены, хорошие потолки и продуманную организацию пространства. Состояние квартиры хорошее. Санузел раздельный, что является большим преимуществом. Приборы учета установлены. Окна выходят на спокойную сторону, обеспечивая в помещениях много естественного света и прекрасный вид на Волжскую ГЭС. Эта квартира прекрасная возможность воплотить все свои дизайнерские желания в своем личном жилье. Квартира с самой постройки дома до настоящего времени находится в одной семье, что гарантирует юридическую чистоту сделки. Район отличается развитой инфраструктурой и транспортной доступностью. Во дворе дома обустроена детская площадка, есть парковочные места. В шаговой доступности вы найдете остановки общественного транспорта, сетевые магазины и рынки для повседневных покупок, медицинские учреждения, кафе и салоны красоты. Недалеко находятся школы и детские сады, что особенно важно для семей с детьми. Это отличный вариант для тех, кто ищет жилье в спокойном районе с полным набором необходимой инфраструктуры. Объект 1-322858
Позвоните автору
Вам ответят на все вопросы

О квартире

Тип жилья

Вторичка

Общая площадь

48,8 м²

Жилая площадь

29,6 м²

Площадь кухни

7,5 м²

Высота потолков

2,75 м

Санузел

1 раздельный

Балкон/лоджия

1 лоджия

Ремонт

Косметический

О доме

Год постройки

1976

Количество лифтов

1 пассажирский

Тип дома

Кирпичный

Тип перекрытий

Железобетонные

Подъезды

5

Отопление

Центральное

Аварийность

Нет

Газоснабжение

Центральное

Спросите умного помощника
Получите экспертное мнение о жилье

Расположение

Ипотечный калькулятор
  • Базовая
  • Семейная
  • ИТ-ипотека
  • 20%
  • 30%
  • 40%
  • 50%
лет
  • 10 лет
  • 20 лет
  • 30 лет
Загружаем предложения от застройщика и банков
Помощь риелтора
Проверенный риелтор поможет купить или продать квартиру
4 500 000 ₽
Цена за метр
92 213 ₽/м²
Условия сделки
свободная продажа
Агентство недвижимости
Документы проверены
На Циан
9 лет
Объектов в работе
более 2000