4 931 ₽/м²
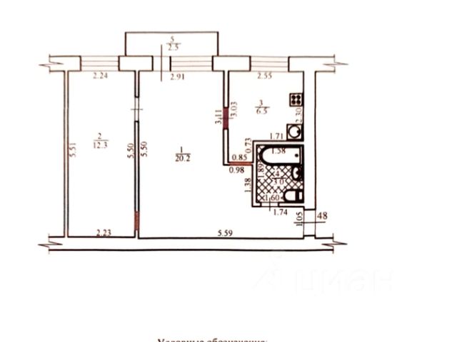
2-к квартира по адресу: Песчаная ул, д. 15 в с. Кислово в Быковском районе Планировка: общая 50.70 / жилая 29.40 / кухня 8.60 Раздельные комнаты: 15.8 + 13.6 метров На полу линолеум. Раздельный санузел. Есть лоджия Квартира разносторонняя и не угловая, окна выходят во внутренний и внешний двор. Условия продажи: 1 собственник, чистая продажа, подходит под ипотеку. Остановка: с. Кислово, рядом проходит улица Молодежная Объект 942269
















































































