75 472 ₽/м²
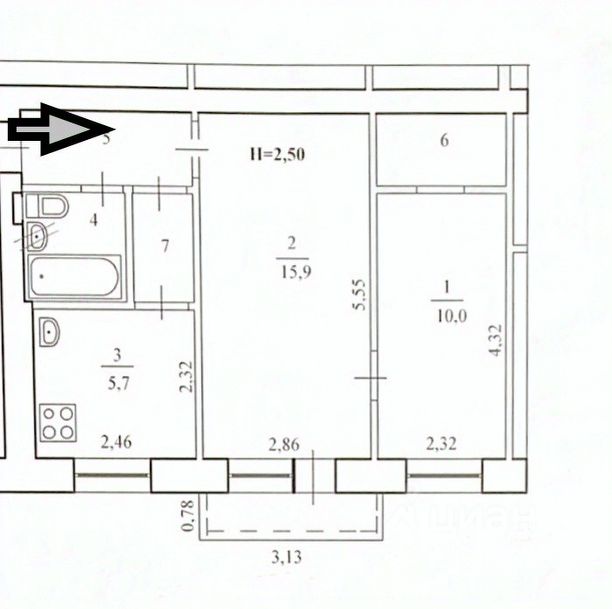
Продается уютная двухкомнатная квартира в кирпичном доме 1969 года постройки. Общая площадь квартиры составляет 42,4 кв. м, жилая площадь — 29,9 кв. м, кухня — 6 кв. м. Квартира расположена на первом этаже пятиэтажного дома, окна выходят на улицу. В квартире сделан косметический ремонт, что позволяет вам внести свои личные акценты в обстановку. Санузел совмещенный, все коммуникации в рабочем состоянии. Планировка удобная и функциональная, что создает комфортное пространство для проживания. Дом в хорошем состоянии, с ухоженной придомовой территорией. На территории предусмотрена наземная парковка, поэтому всегда можно найти место для автомобиля. Дом расположен в районе с развитой инфраструктурой. В шаговой доступности от дома находятся школы и детские сады, что особенно удобно для семей с детьми. Рядом есть магазины и клиники, что обеспечивает комфортное проживание и быстрое решение повседневных задач. Удобная транспортная доступность: до ближайших остановок общественного транспорта всего несколько минут пешком. Квартира полностью готова к продаже, документы в порядке. Возможна покупка в ипотеку. Все юридические вопросы решены, поэтому сделка пройдет быстро и без проблем. Приглашаем вас на просмотр, чтобы лично оценить все преимущества этого предложения. Звоните, договоримся об удобном времени для встречи!












































































